ADU - The Big Sur

$99
0 ratings

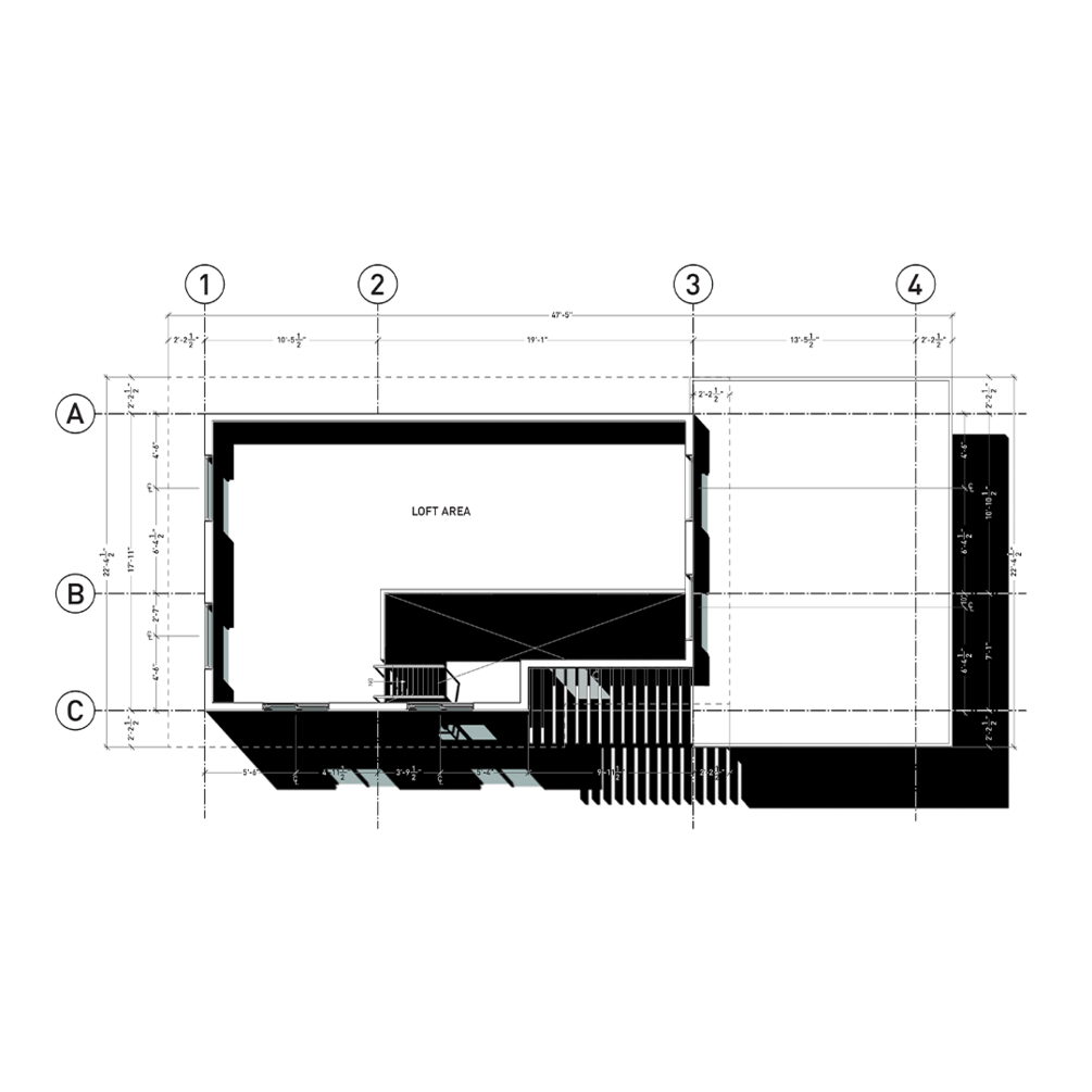
Size: 750 square feet   Dimensions: 18'x43'   Height: 16' max   BR/BA: 2 bedrooms/1bath

Description:

The Big Sur is a two-bedroom/one-bath accessory dwelling unit (ADU) with enough design versatility to serve as a large studio or to accommodate a small family. 

This ADU’s broad roofs and wood trellis provide for a contemporary sense of entry to the home. These expressions also work to play up the perceived size of the residence despite its modest footprint. Sense of scale is further emphasized at the entry foyer, which linearly connects all of the home’s spaces and opens up vertically to an array of clerestory windows. In addition to the bedrooms, kitchen, and living spaces, a loft provides an added 360 square feet of flexible space for lounging, storage, or extra-high bedroom volumes as the owner sees fit. 

With a variety of spatial applications, architectural expressions, and facade materials, the Big Sur is capable of enhancing an existing residence or establishing a new identity all its own.


Included in this purchase:

One (1) concept design package including: 3D Views, Elevations, Floor Plans

One (1) AutoCAD file of a 3D file of the drawings for the project.

One (1) AutoCAD file of 2D plans and elevations.

I want this!

Design Concept Package for this Accessory Dwelling Unit.

Size
10.8 MB
$99

ADU - The Big Sur

0 ratings
I want this!